1331 N 1850 W, Clinton, UT 84015
1331 N 1850 N Clinton, UT 84015
Community: Regency Gardens – Phase 2
MLS#2134849 – View
🚧Under Construction – Buy Now Before It’s Gone!
4
Beds
3
Baths
3
Garage
4,900
SQ ft
Lot 12 Regency Gardens
MLS# 2121544
Discover your dream home in Regency Gardens Phase II, nestled in the heart of desirable Davis County! This stunning new build is the last of just seven exclusive homes, offering exceptional design and thoughtfully curated finishes inside and out. Located in a prime, commuter-friendly spot, it provides easy access to Hill Air Force Base and is surrounded by top-rated schools—perfect for families seeking the best in convenience and education.
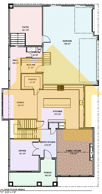
Step inside and be captivated by the modern, stylish interiors, featuring granite countertops throughout, elegant laminate flooring, and a host of premium upgrades. The main level is an entertainer’s paradise, with a spacious great room flowing effortlessly into a meticulously designed kitchen, complete with custom soft-close cabinets, a chic farmhouse sink, sleek stainless steel appliances, and a large walk-in pantry. The convenience continues with a well-placed laundry room and mudroom, plus a guest-friendly half bath.
Upstairs, you’ll find four generously sized bedrooms, including a luxurious primary suite boasting a spa-like en-suite bathroom with an expansive walk-in closet. The second floor also features a full hall bathroom for added convenience. And that’s not all—this home includes an unfinished basement, ready for your personal touch, with space for two additional bedrooms and a full bath.
Outside, enjoy a relaxing evening on your covered front porch or host a barbecue on the patio. The oversized three-car garage offers plenty of room for storage and vehicles. Best of all? No HOA fees!
With its unbeatable location, designer features, and ample space, this home truly has it all. Don’t miss your chance to make it yours!






















